Փական գնդավոր թիթեռնիկ-բռնակով փոխարկիչ զոնդով արտաքին և ներքին պարուրակով 1"x3/4" Giacomini-R859TY006
Փական գնդավոր թիթեռնիկ-բռնակով փոխարկիչ զոնդով արտաքին և ներքին պարուրակով 1"x3/4" Giacomini-R859TY006
Փական գնդավոր թիթեռնիկ-բռնակով փոխարկիչ զոնդով արտաքին և ներքին պարուրակով 1"x3/4" Giacomini-R859TY006
Ապրանքի նկարագիր
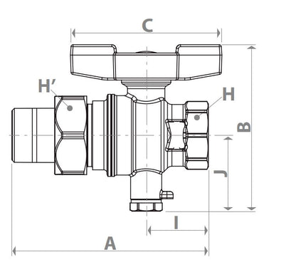
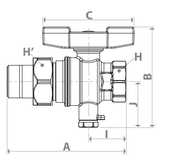
Giacomini R859TY006-ը լիաթափանց գնդավոր փական է՝ նախատեսված ջեռուցման և սառեցման համակարգերի համար։ Այն ունի փոխարկիչ միացում՝ 3/4" ներքին և 1" արտաքին պարուրակներով։ Փականը համալրված է ջերմաստիճանի զոնդի (Ø 6 մմ) համար նախատեսված M10x1 մմ անցքով, ինչը թույլ է տալիս վերահսկել ջերմակրի ջերմաստիճանը անմիջապես փականի միջոցով։ Ալյումինե T-աձև (թիթեռնիկ) բռնակը ապահովում է հարմարավետ կառավարում նույնիսկ սահմանափակ տարածություններում։
Հիմնական առանձնահատկությունները և առավելությունները
- Ջերմաստիճանի վերահսկում։ Ներկառուցված անցքը թույլ է տալիս հեշտությամբ տեղադրել ջերմաստիճանի զոնդ՝ համակարգի ճշգրիտ մոնիթորինգի համար։
- Լիաթափանց կառուցվածք։ Ապահովում է հեղուկի անխոչընդոտ հոսք՝ նվազագույնի հասցնելով հիդրավլիկ դիմադրությունը։
- Բարձր հուսալիություն։ Ցողունի կրկնակի O-Ring խտացուցիչը և հակակոռոզիոն ծածկույթով մանեկը երաշխավորում են երկարակեցություն և պաշտպանություն արտահոսքից։
- Հարմարավետ բռնակ։ Կոմպակտ T-աձև բռնակը իդեալական է այն վայրերում տեղադրելու համար, որտեղ ստանդարտ լծակը կարող է խանգարել։
- Բարձրորակ նյութեր։ Փականը պատրաստված է UNI EN 12165 CW617N բարձրորակ արույրից։
Տեխնիկական բնութագրեր
- Արտադրող։ Giacomini (Իտալիա)
- Մոդել։ R859TY006
- Միացում (պարուրակային)։ 3/4" (ներքին) x 1" (արտաքին)
- Առավելագույն ճնշում (20°C)։ 35 բար (3/4" միացման համար), 28 բար (1" միացման համար)
- Աշխատանքային ջերմաստիճան։ -20°C-ից մինչև +120°C
- Կիրառվող հեղուկներ։ Ջուր, գլիկոլային լուծույթներ (մինչև 50%)
- Նյութ։ CW617N արույր, Ալյումին (բռնակ)
- Զոնդի անցք։ M10x1 մմ (Ø 6 մմ զոնդի համար)
- Չափսեր (Ըստ գծագրի)։ A: 100 մմ, B: 80 մմ, C: 73 մմ, I: 30 մմ
Կիրառման ոլորտները
Իդեալական է ջեռուցման և սառեցման համակարգերում, կոլեկտորային հանգույցներում, կաթսայատներում և այլ կիրառություններում, որտեղ անհրաժեշտ է և՛ փակող-բացող ֆունկցիա, և՛ ջերմաստիճանի վերահսկման հնարավորություն։
Ավելի մանրամասն տեղեկությունների, տեղադրման և սպասարկման հրահանգների համար կարող եք ներբեռնել տեխնիկական տվյալների թերթիկը։
Share
